Casa indipendente in vendita

Luzzara, Via Giuseppe Lorenzini
€ 145.000
3 locali 3 locali
100 Mq 100 Mq
2 bagni 2 bagni

Casa indipendente in vendita

Luzzara, Via Giuseppe Lorenzini

Descrizione annuncio

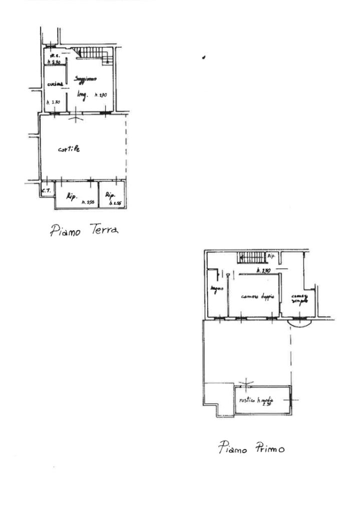
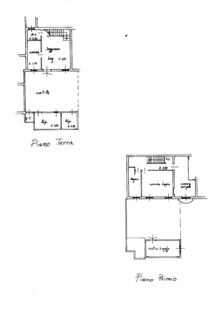
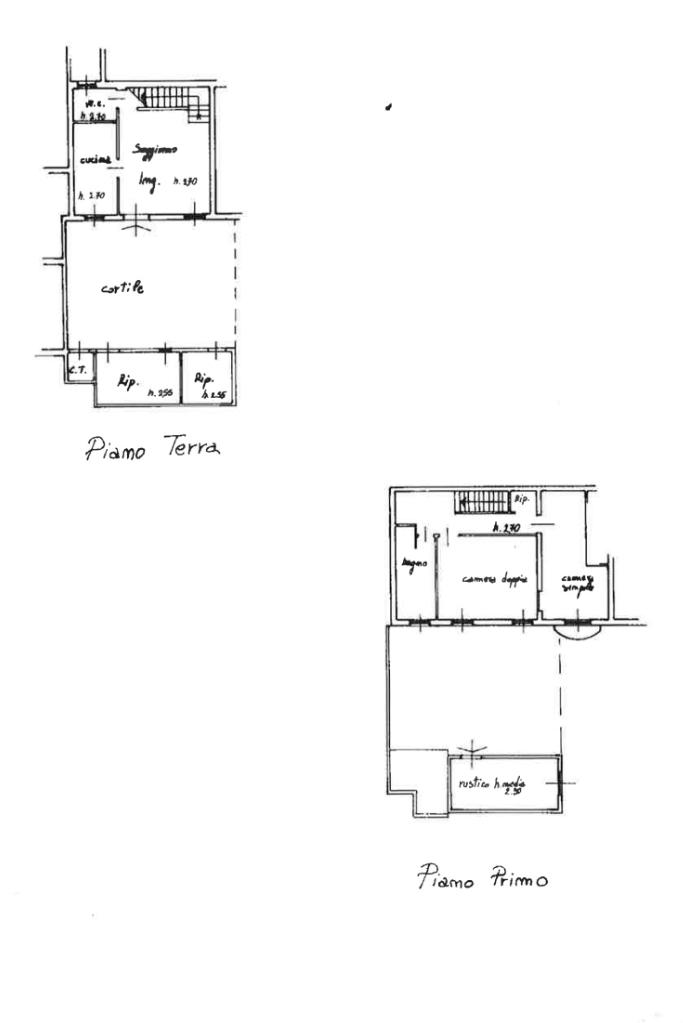
LUZZARA: Proponiamo in vendita casa indipendente sviluppata su due livelli. Al piano terra, l'ingresso si apre su un accogliente soggiorno, perfetto per momenti di relax, con un cucinotto separato che garantisce praticità e funzionalità. Completa il piano un comodo bagno e un utile spazio sottoscala. Salendo al primo piano, si trovano due camere da letto, una delle quali con accesso al balcone, e un secondo bagno. Un rustico annesso alla proprietà offre possibilità di personalizzazione e utilizzo secondo le proprie esigenze. L'abitazione è valorizzata dalla porzione di cortile privato sul fronte.

SE È INTERESSATO/A ALLE NOSTRE PROPOSTE E HA UNA CASA DA VENDERE, VENGA A TROVARCI PERCHÉ ABBIAMO LA SOLUZIONE IDEALE PER ACQUISTARE E VENDERE CONTESTUALMENTE IN UN’UNICA OPERAZIONE, CON ESTREMA SERENITÀ E NEL MINOR TEMPO POSSIBILE.
INOLTRE, PER CHI VENDE CON NOI, GARANTIAMO I SEGUENTI SERVIZI:
-VALUTAZIONE GRATUITA
-ANALISI DI PROVENIENZA
-VISURE IPOTECARIE E CATASTALI
-MOLTEPLICI E MIGLIORI SERVIZI DI PROMOZIONE PUBBLICITARIA TRADIZIONALI E SULLE PRINCIPALI PIATTAFORME IN RETE: IDEALISTA, .

Mostra tutto

Nelle vicinanze

Trasporto pubblico Trasporto pubblico
Luzzara
Luzzara
990 m
Ricariche auto elettriche Ricariche auto elettriche
Enel X Municipio di Luzzara
130 m
Mostra tutto

Caratteristiche

Rif.:
61128991
Piano:
2 di 2 (Piano su più livelli)
Balconi:
1
Camere da letto:
2
Arredamento:
Assente
Condizionamento:
Predisposizione impianto
Mostra tutto
Prezzo Prezzo
€ 145.000
Rata mutuo Rata mutuo
€ 676 / mese
Spese annue Spese annue
€ 0
Proponi il tuo prezzoProponi il tuo prezzo

Classe Energetica

G
G
G
G
G
G
G
G
G
EP invernale del fabbricato:
EP estiva del fabbricato:
Riscaldamento:
Autonomo
Tipo impianto:
A radiatori
Tipo alimentazione:
Metano

Ti interessa visionare l'immobile?

Fissa un appuntamento  Fissa un appuntamento

Richiedi informazioni

Clicca su Leggi per aprire l'informativa
* Questi campi sono obbligatori

Calcola il tuo mutuo

Semplice e senza impegno
Anticipo

( % )
Mutuo

( % )

pochi semplici passi

inserisci i tuoi dati
Questionario completato
Grazie per aver richiesto un appuntamento senza impegno con un nostro Consulente del Credito e Assicurativo.

Hai inserito correttamente tutti i dati necessari e a breve riceverai una e-mail con un link da convalidare per inviare i tuoi dati.
Affiliato
Tecnosuzzara Srl
Viale Europa, 16 46029 Suzzara (MN)

Il nostro staff


  • Fabio Amati
    Responsabile

  • Giovanni Boccia
    Affiliato

  • Andrea Curcio
    Collaboratore

  • Mohamed Filal
    Collaboratore

  • Valentina Greco
    Coordinatrice

  • Chiara Pia Parente
    Collaboratrice
Viale Europa, 16 46029 Suzzara (MN)
Zona: Suzzara
Mostra su mappa
Orari: dal lunedì al venerdì: 09.00 - 13.00 e 15.00 - 19.30; sabato 09.00 - 13.00 e al pomeriggio su appuntamento
Affiliato
Tecnosuzzara Srl
Viale Europa, 16 46029 Suzzara (MN)

2025 Tecnocasa Franchising S.p.A. - P. IVA 08365160152 - Via Monte Bianco 60/A 20089 Rozzano (MI). Ogni agenzia ha un proprio titolare ed è autonoma. Privacy policy | Policy utilizzo | Cookie policy