Bilocale in vendita

Suzzara
€ 72.000
Prezzo aggiornato
1 locale 1 locale
60 Mq 60 Mq
1 bagno 1 bagno

Bilocale in vendita

Suzzara

Descrizione annuncio

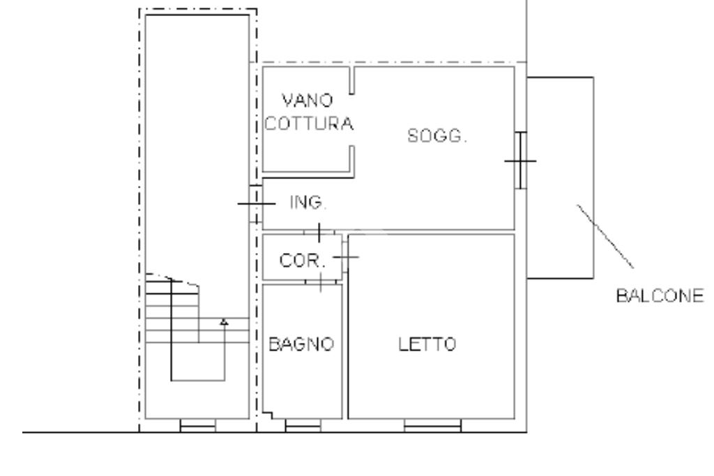
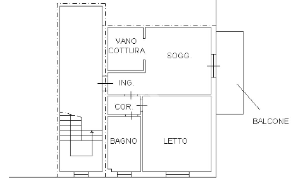
SUZZARA: Proponiamo in vendita appartamento bilocale situato al secondo e ultimo piano di un edificio costruito alla fine degli anni 80. L'immobile è composto dall’ingresso che conduce a un luminoso soggiorno con angolo cottura da cui si accede al balcone, ideale per momenti di relax. Un disimpegno separa la zona giorno dalla zona notte, dove si trovano una camera da letto e il bagno completamente ristrutturato. Completa la proprietà un comodo box, che aggiunge praticità e sicurezza. Questa soluzione abitativa rappresenta un'opportunità interessante per chi cerca un ambiente confortevole e ben organizzato, in una posizione tranquilla ma ben collegata ai servizi.

SE È INTERESSATO/A ALLE NOSTRE PROPOSTE E HA UNA CASA DA VENDERE, VENGA A TROVARCI PERCHÉ ABBIAMO LA SOLUZIONE IDEALE PER ACQUISTARE E VENDERE CONTESTUALMENTE IN UN’UNICA OPERAZIONE, CON ESTREMA SERENITÀ E NEL MINOR TEMPO POSSIBILE.
INOLTRE, PER CHI VENDE CON NOI, GARANTIAMO I SEGUENTI SERVIZI:
-VALUTAZIONE GRATUITA
-ANALISI DI PROVENIENZA
-VISURE IPOTECARIE E CATASTALI
-MOLTEPLICI E MIGLIORI SERVIZI DI PROMOZIONE PUBBLICITARIA TRADIZIONALI E SULLE PRINCIPALI PIATTAFORME IN RETE: IDEALISTA, .

Mostra tutto

Nelle vicinanze

Trasporto pubblico Trasporto pubblico
Suzzara
Suzzara
1,5 Km
Boiane bivio - Via Villa Inferiore
Boiane bivio - Via Villa Inferiore
1,0 Km
Codisotto
Codisotto
1,7 Km
Ricariche auto elettriche Ricariche auto elettriche
evway Comune di Suzzara
530 m
U2 Supermercato Suzzara | EnelX
570 m
Scuole Scuole
Scuole
1,4 Km
Farmacia Farmacia
Parafarmacia Conad
1,0 Km
Ospedali Ospedali
Ospedale di Suzzara
960 m
Supermercati Supermercati
U2
530 m
Conad
1,0 Km
Ipercoop
1,7 Km
Ristoranti Ristoranti
Ristorante Pizzeria da Cuomo
1,6 Km
Mostra tutto

Caratteristiche

Rif.:
61114132
Piano:
2 di 3 (Piano basso)
Box:
1
Balconi:
1
Camere da letto:
1
Arredamento:
Assente
Mostra tutto
Prezzo Prezzo
€ 72.000
Rata mutuo Rata mutuo
€ 336 / mese
Spese annue Spese annue
€ 250
Proponi il tuo prezzoProponi il tuo prezzo

Classe Energetica

G
G
G
G
G
G
G
G
G
Anno di costruzione:
1987
Riscaldamento:
Autonomo
Tipo impianto:
A radiatori
Tipo alimentazione:
Metano

Prezzo ridotto di €1 (4%%)

Ti interessa visionare l'immobile?

Fissa un appuntamento  Fissa un appuntamento

Richiedi informazioni

Clicca su Leggi per aprire l'informativa
* Questi campi sono obbligatori

Calcola il tuo mutuo

Semplice e senza impegno
Anticipo

( % )
Mutuo

( % )

pochi semplici passi

inserisci i tuoi dati
Questionario completato
Grazie per aver richiesto un appuntamento senza impegno con un nostro Consulente del Credito e Assicurativo.

Hai inserito correttamente tutti i dati necessari e a breve riceverai una e-mail con un link da convalidare per inviare i tuoi dati.
Affiliato
Tecnosuzzara Srl
Viale Europa, 16 46029 Suzzara (MN)

Il nostro staff


  • Fabio Amati
    Responsabile

  • Giovanni Boccia
    Affiliato

  • Andrea Curcio
    Collaboratore

  • Mohamed Filal
    Collaboratore

  • Valentina Greco
    Coordinatrice

  • Chiara Pia Parente
    Collaboratrice
Viale Europa, 16 46029 Suzzara (MN)
Zona: Suzzara
Mostra su mappa
Orari: dal lunedì al venerdì: 09.00 - 13.00 e 15.00 - 19.30; sabato 09.00 - 13.00 e al pomeriggio su appuntamento
Affiliato
Tecnosuzzara Srl
Viale Europa, 16 46029 Suzzara (MN)

2025 Tecnocasa Franchising S.p.A. - P. IVA 08365160152 - Via Monte Bianco 60/A 20089 Rozzano (MI). Ogni agenzia ha un proprio titolare ed è autonoma. Privacy policy | Policy utilizzo | Cookie policy