Trilocale in vendita

Suzzara, Via Europa
€ 115.000
3 locali 3 locali
114 Mq 114 Mq
2 bagni 2 bagni

Trilocale in vendita

Suzzara, Via Europa

Descrizione annuncio

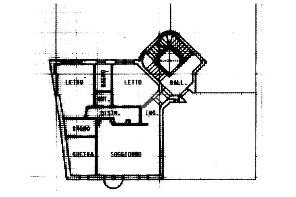
SUZZARA: Proponiamo in vendita appartamento posto al secondo e ultimo piano, raggiungibile comodamente con l'ascensore. All'interno, l'appartamento si apre su un ampio soggiorno, con una cucina separata che offre praticità e funzionalità. Un disimpegno conduce alla zona notte, dove si trovano due spaziose camere da letto matrimoniali, ideali per chi cerca comfort e tranquillità. Sono presenti due bagni, che garantiscono comodità e privacy per tutta la famiglia. Completa la proprietà un posto auto coperto privato e una cantina, che rappresentano un valore aggiunto per chi desidera protezione per il proprio veicolo e uno spazio aggiuntivo.

SE È INTERESSATO/A ALLE NOSTRE PROPOSTE E HA UNA CASA DA VENDERE, VENGA A TROVARCI PERCHÉ ABBIAMO LA SOLUZIONE IDEALE PER ACQUISTARE E VENDERE CONTESTUALMENTE IN UN’UNICA OPERAZIONE, CON ESTREMA SERENITÀ E NEL MINOR TEMPO POSSIBILE.
INOLTRE, PER CHI VENDE CON NOI, GARANTIAMO I SEGUENTI SERVIZI:
-VALUTAZIONE GRATUITA
-ANALISI DI PROVENIENZA
-VISURE IPOTECARIE E CATASTALI
-MOLTEPLICI E MIGLIORI SERVIZI DI PROMOZIONE PUBBLICITARIA TRADIZIONALI E SULLE PRINCIPALI PIATTAFORME IN RETE: IDEALISTA, .

Mostra tutto

Nelle vicinanze

Trasporto pubblico Trasporto pubblico
Suzzara
Suzzara
1,9 Km
Boiane bivio - Via Villa Inferiore
Boiane bivio - Via Villa Inferiore
2,7 Km
Codisotto
Codisotto
2,7 Km
Ricariche auto elettriche Ricariche auto elettriche
evway Comune di Suzzara
1,5 Km
U2 Supermercato Suzzara | EnelX
2,1 Km
Scuole Scuole
Scuole
190 m
Farmacia Farmacia
Parafarmacia Conad
810 m
Ospedali Ospedali
Ospedale di Suzzara
2,2 Km
Supermercati Supermercati
Ipercoop
110 m
Conad
820 m
U2
2,0 Km
Ristoranti Ristoranti
Ristorante Pizzeria da Cuomo
170 m
Ristoranti
2,9 Km
Mostra tutto

Caratteristiche

Rif.:
61126674
Piano:
2 di 2 con ascensore (ultimo Piano)
Posti auto:
1
Balconi:
1
Camere da letto:
2
Arredamento:
Assente
Mostra tutto
Prezzo Prezzo
€ 115.000
Rata mutuo Rata mutuo
€ 546 / mese
Spese annue Spese annue
€ 950
Proponi il tuo prezzoProponi il tuo prezzo

Classe Energetica

G
G
G
G
G
G
G
G
G
EP globale non rinnovabile:
101.76 kW h/m² anno
EP globale rinnovabile:
51.21 kW h/m² anno
EP invernale del fabbricato:
EP estiva del fabbricato:
Anno di costruzione:
1990
Riscaldamento:
Autonomo
Tipo impianto:
A radiatori
Tipo alimentazione:
Metano

Ti interessa visionare l'immobile?

Fissa un appuntamento  Fissa un appuntamento

Richiedi informazioni

Clicca su Leggi per aprire l'informativa
* Questi campi sono obbligatori

Calcola il tuo mutuo

Semplice e senza impegno
Anticipo

( % )
Mutuo

( % )

pochi semplici passi

inserisci i tuoi dati
Questionario completato
Grazie per aver richiesto un appuntamento senza impegno con un nostro Consulente del Credito e Assicurativo.

Hai inserito correttamente tutti i dati necessari e a breve riceverai una e-mail con un link da convalidare per inviare i tuoi dati.
Affiliato
Tecnosuzzara Srl
Viale Europa, 16 46029 Suzzara (MN)

Il nostro staff


  • Fabio Amati
    Responsabile

  • Giovanni Boccia
    Affiliato

  • Andrea Curcio
    Responsabile

  • Carmine Greco
    Collaboratore

  • Chiara Pia Parente
    Collaboratrice

  • Martina Roversi
    Coordinatrice
Viale Europa, 16 46029 Suzzara (MN)
Zona: Suzzara
Mostra su mappa
Orari: dal lunedì al venerdì: 09.00 - 13.00 e 15.00 - 19.30; sabato 09.00 - 13.00 e al pomeriggio su appuntamento
Affiliato
Tecnosuzzara Srl
Viale Europa, 16 46029 Suzzara (MN)

2026 Tecnocasa Franchising S.p.A. - P. IVA 08365160152 - Via Monte Bianco 60/A 20089 Rozzano (MI). Ogni agenzia ha un proprio titolare ed è autonoma. Privacy policy | Policy utilizzo | Cookie policy