Bilocale in vendita

Suzzara, Via Mantegna
€ 85.000
2 locali 2 locali
87 Mq 87 Mq
1 bagno 1 bagno

Bilocale in vendita

Suzzara, Via Mantegna

Descrizione annuncio

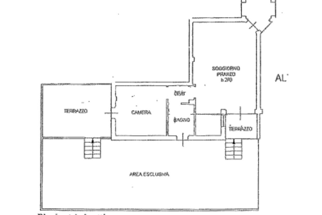
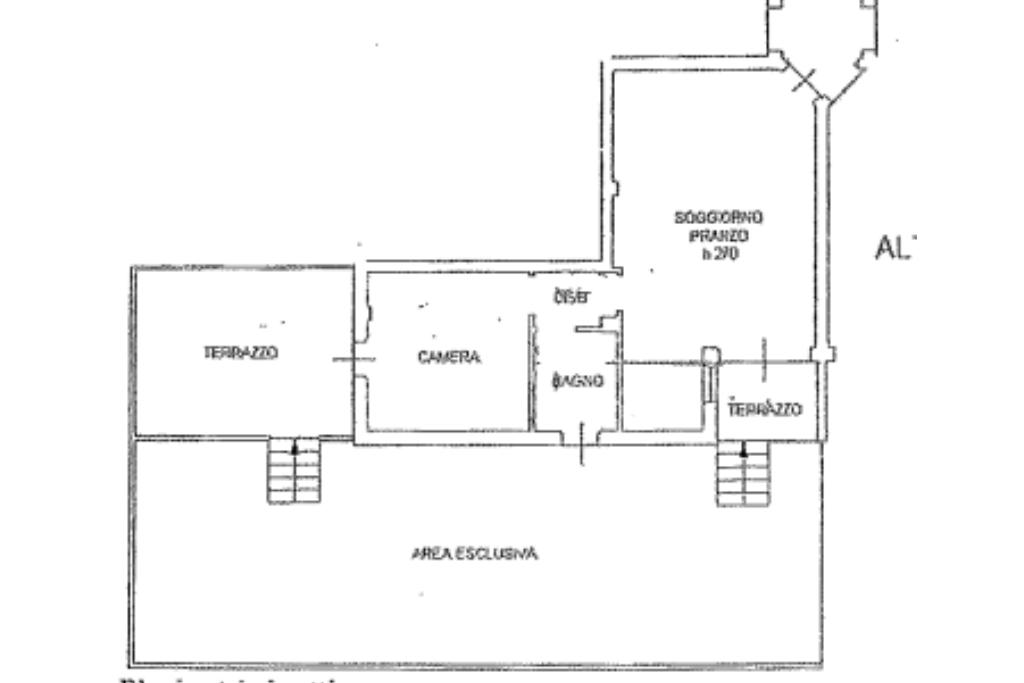
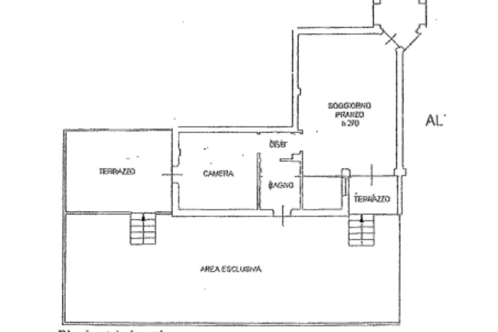
SUZZARA: In contesto condominiale dei primi anni 2000, proponiamo in vendita appartamento al piano terra inserito in una palazzina dotata di cappotto termico, videocitofono e ascensore con accesso diretto ai garage interrati, situata in posizione strategica e comoda a tutti i principali servizi.
L'immobile si distingue per la presenza di ampi e preziosi spazi esterni privati: un giardino esclusivo di circa 80 mq, ideale per momenti di relax e convivialità, e un terrazzo di 20 mq che valorizza ulteriormente la zona giorno, offrendo un perfetto prolungamento dell'abitazione verso l'esterno.
A completamento della proprietà troviamo cantina e garage di pertinenza, elementi fondamentali che garantiscono funzionalità e comfort abitativo.
Soluzione ricercata e difficilmente reperibile, ideale per chi desidera vivere in un contesto moderno, curato e riservato, senza rinunciare alla comodità degli spazi esterni.

SE È INTERESSATO/A ALLE NOSTRE PROPOSTE E HA UNA CASA DA VENDERE, VENGA A TROVARCI PERCHÉ ABBIAMO LA SOLUZIONE IDEALE PER ACQUISTARE E VENDERE CONTESTUALMENTE IN UN’UNICA OPERAZIONE, CON ESTREMA SERENITÀ E NEL MINOR TEMPO POSSIBILE.
INOLTRE, PER CHI VENDE CON NOI, GARANTIAMO I SEGUENTI SERVIZI:
-VALUTAZIONE GRATUITA
-ANALISI DI PROVENIENZA
-VISURE IPOTECARIE E CATASTALI
-MOLTEPLICI E MIGLIORI SERVIZI DI PROMOZIONE PUBBLICITARIA TRADIZIONALI E SULLE PRINCIPALI PIATTAFORME IN RETE.

Mostra tutto

Nelle vicinanze

Trasporto pubblico Trasporto pubblico
Suzzara
Suzzara
1,2 Km
Boiane bivio - Via Villa Inferiore
Boiane bivio - Via Villa Inferiore
2,6 Km
Ricariche auto elettriche Ricariche auto elettriche
evway Comune di Suzzara
1,4 Km
U2 Supermercato Suzzara | EnelX
1,9 Km
Scuole Scuole
Scuole
660 m
Farmacia Farmacia
Parafarmacia Conad
1,3 Km
Ospedali Ospedali
Ospedale di Suzzara
1,8 Km
Supermercati Supermercati
Ipercoop
790 m
Conad
1,3 Km
U2
1,8 Km
Ristoranti Ristoranti
Ristorante Pizzeria da Cuomo
840 m
Mostra tutto

Caratteristiche

Rif.:
61175072
Piano:
Terra di 2 con ascensore
Totale piani:
2
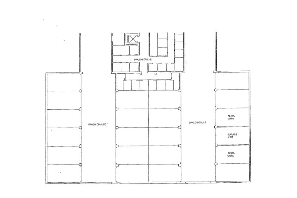
Box:
1
Posti auto:
1
Terrazzi:
1
Mostra tutto
Prezzo Prezzo
€ 85.000
Rata mutuo Rata mutuo
€ 404 / mese
Spese annue Spese annue
€ 600
Proponi il tuo prezzoProponi il tuo prezzo

Classe Energetica

F
F
F
F
F
F
F
F
F
EP globale non rinnovabile:
213.01 kW h/m² anno
EP globale rinnovabile:
3.00 kW h/m² anno
EP invernale del fabbricato:
EP estiva del fabbricato:
Anno di costruzione:
2005
Riscaldamento:
Autonomo
Tipo impianto:
A radiatori
Tipo alimentazione:
Metano

Ti interessa visionare l'immobile?

Fissa un appuntamento  Fissa un appuntamento

Richiedi informazioni

Clicca su Leggi per aprire l'informativa
* Questi campi sono obbligatori

Calcola il tuo mutuo

Semplice e senza impegno
Anticipo

( % )
Mutuo

( % )

pochi semplici passi

inserisci i tuoi dati
Questionario completato
Grazie per aver richiesto un appuntamento senza impegno con un nostro Consulente del Credito e Assicurativo.

Hai inserito correttamente tutti i dati necessari e a breve riceverai una e-mail con un link da convalidare per inviare i tuoi dati.
Affiliato
Tecnosuzzara Srl
Viale Europa, 16 46029 Suzzara (MN)

Il nostro staff


  • Fabio Amati
    Responsabile

  • Giovanni Boccia
    Affiliato

  • Andrea Curcio
    Responsabile

  • Carmine Greco
    Collaboratore

  • Chiara Pia Parente
    Collaboratrice

  • Martina Roversi
    Coordinatrice
Viale Europa, 16 46029 Suzzara (MN)
Zona: Suzzara
Mostra su mappa
Orari: dal lunedì al venerdì: 09.00 - 13.00 e 15.00 - 19.30; sabato 09.00 - 13.00 e al pomeriggio su appuntamento
Affiliato
Tecnosuzzara Srl
Viale Europa, 16 46029 Suzzara (MN)

2026 Tecnocasa Franchising S.p.A. - P. IVA 08365160152 - Via Monte Bianco 60/A 20089 Rozzano (MI). Ogni agenzia ha un proprio titolare ed è autonoma. Privacy policy | Policy utilizzo | Cookie policy