Casa indipendente in vendita

Suzzara, Via Zara
€ 200.000
Prezzo aggiornato
7 locali 7 locali
645 Mq 645 Mq
2 bagni 2 bagni

Casa indipendente in vendita

Suzzara, Via Zara

Descrizione annuncio

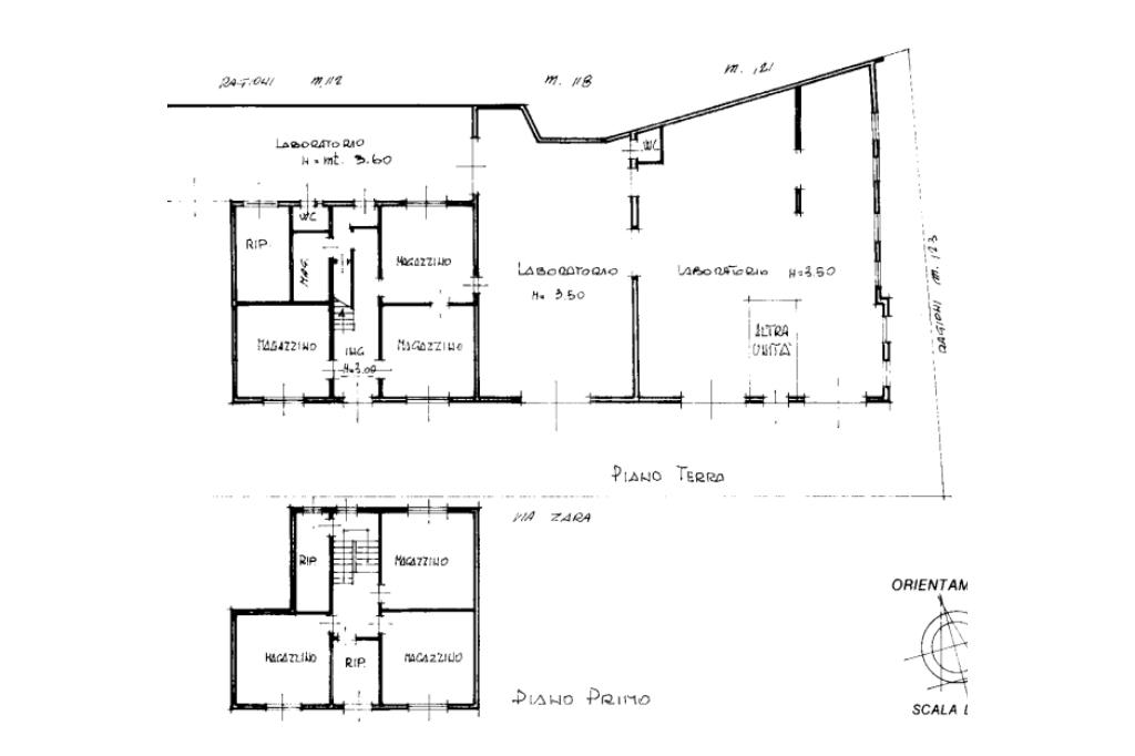
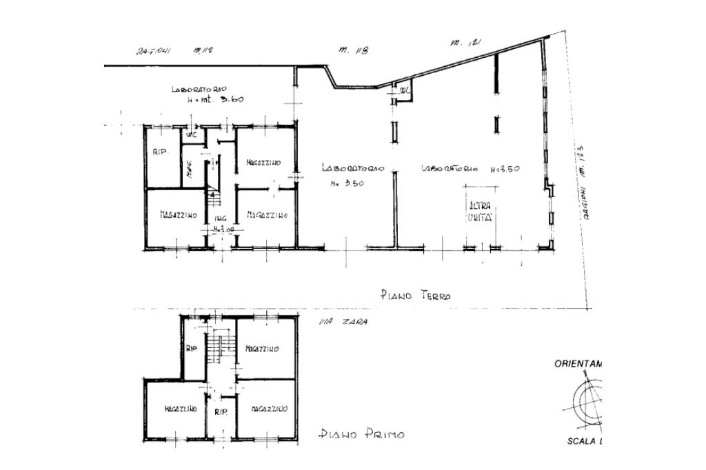
SUZZARA : Proponiamo in vendita su lotto di circa 600 Mq fabbricato da ristrutturare sito in pieno centro e comodo ai principali servizi. La soluzione è composta da due unità abitative indipendenti di circa 120 Mq l’una, le quali presentano soggiorno, cucina separata e ben tre camere da letto con annesso servizio.

Completa la soluzione un locale laboratorio di circa 280 Mq adatto anche come ricovero/magazzino.

SE È INTERESSATO/A ALLE NOSTRE PROPOSTE E HA UNA CASA DA VENDERE, VENGA A TROVARCI PERCHÉ ABBIAMO LA SOLUZIONE IDEALE PER ACQUISTARE E VENDERE CONTESTUALMENTE IN UN’UNICA OPERAZIONE, CON ESTREMA SERENITÀ E NEL MINOR TEMPO POSSIBILE.
INOLTRE, PER CHI VENDE CON NOI, GARANTIAMO I SEGUENTI SERVIZI:
-VALUTAZIONE GRATUITA
-ANALISI DI PROVENIENZA
-VISURE IPOTECARIE E CATASTALI
-MOLTEPLICI E MIGLIORI SERVIZI DI PROMOZIONE PUBBLICITARIA TRADIZIONALI E SULLE PRINCIPALI PIATTAFORME IN RETE.

Mostra tutto

Nelle vicinanze

Trasporto pubblico Trasporto pubblico
Suzzara
Suzzara
900 m
Boiane bivio - Via Villa Inferiore
Boiane bivio - Via Villa Inferiore
1,6 Km
Codisotto
Codisotto
2,3 Km
Ricariche auto elettriche Ricariche auto elettriche
evway Comune di Suzzara
340 m
U2 Supermercato Suzzara | EnelX
880 m
Scuole Scuole
Scuole
560 m
Farmacia Farmacia
Parafarmacia Conad
780 m
Ospedali Ospedali
Ospedale di Suzzara
970 m
Supermercati Supermercati
Conad
790 m
U2
820 m
Ipercoop
1,1 Km
Ristoranti Ristoranti
Ristorante Pizzeria da Cuomo
1,1 Km
Mostra tutto

Caratteristiche

Rif.:
61167010
Piano:
Terra di 2
Totale piani:
2
Box:
1
Terrazzi:
1
Camere da letto:
3
Mostra tutto
Prezzo Prezzo
€ 200.000
Rata mutuo Rata mutuo
€ 950 / mese
Spese annue Spese annue
€ 0
Proponi il tuo prezzoProponi il tuo prezzo

Classe Energetica

G
G
G
G
G
G
G
G
G
EP globale non rinnovabile:
234.28 kW h/m² anno
EP globale rinnovabile:
6.64 kW h/m² anno
EP invernale del fabbricato:
EP estiva del fabbricato:
Anno di costruzione:
1960
Riscaldamento:
Assente

Prezzo ridotto di €1 (7%%)

Ti interessa visionare l'immobile?

Fissa un appuntamento  Fissa un appuntamento

Richiedi informazioni

Clicca su Leggi per aprire l'informativa
* Questi campi sono obbligatori

Calcola il tuo mutuo

Semplice e senza impegno
Anticipo

( % )
Mutuo

( % )

pochi semplici passi

inserisci i tuoi dati
Questionario completato
Grazie per aver richiesto un appuntamento senza impegno con un nostro Consulente del Credito e Assicurativo.

Hai inserito correttamente tutti i dati necessari e a breve riceverai una e-mail con un link da convalidare per inviare i tuoi dati.
Affiliato
Tecnosuzzara Srl
Viale Europa, 16 46029 Suzzara (MN)

Il nostro staff


  • Fabio Amati
    Responsabile

  • Giovanni Boccia
    Affiliato

  • Andrea Curcio
    Responsabile

  • Carmine Greco
    Collaboratore

  • Chiara Pia Parente
    Collaboratrice

  • Martina Roversi
    Coordinatrice
Viale Europa, 16 46029 Suzzara (MN)
Zona: Suzzara
Mostra su mappa
Orari: dal lunedì al venerdì: 09.00 - 13.00 e 15.00 - 19.30; sabato 09.00 - 13.00 e al pomeriggio su appuntamento
Affiliato
Tecnosuzzara Srl
Viale Europa, 16 46029 Suzzara (MN)

2026 Tecnocasa Franchising S.p.A. - P. IVA 08365160152 - Via Monte Bianco 60/A 20089 Rozzano (MI). Ogni agenzia ha un proprio titolare ed è autonoma. Privacy policy | Policy utilizzo | Cookie policy