Porzione di bifamiliare in vendita

Suzzara, Via europa
€ 320.000
4 locali 4 locali
150 Mq 150 Mq
2 bagni 2 bagni

Porzione di bifamiliare in vendita

Suzzara, Via europa

Descrizione annuncio

SUZZARA: Proponiamo in vendita porzione di bifamiliare, di nuova costruzione, situata in zona centrale e comoda ai principali servizi. La soluzione presenta finiture di ultima generazione (riscaldamento a pavimento, cappotto esterno, pannelli fotovoltaici).
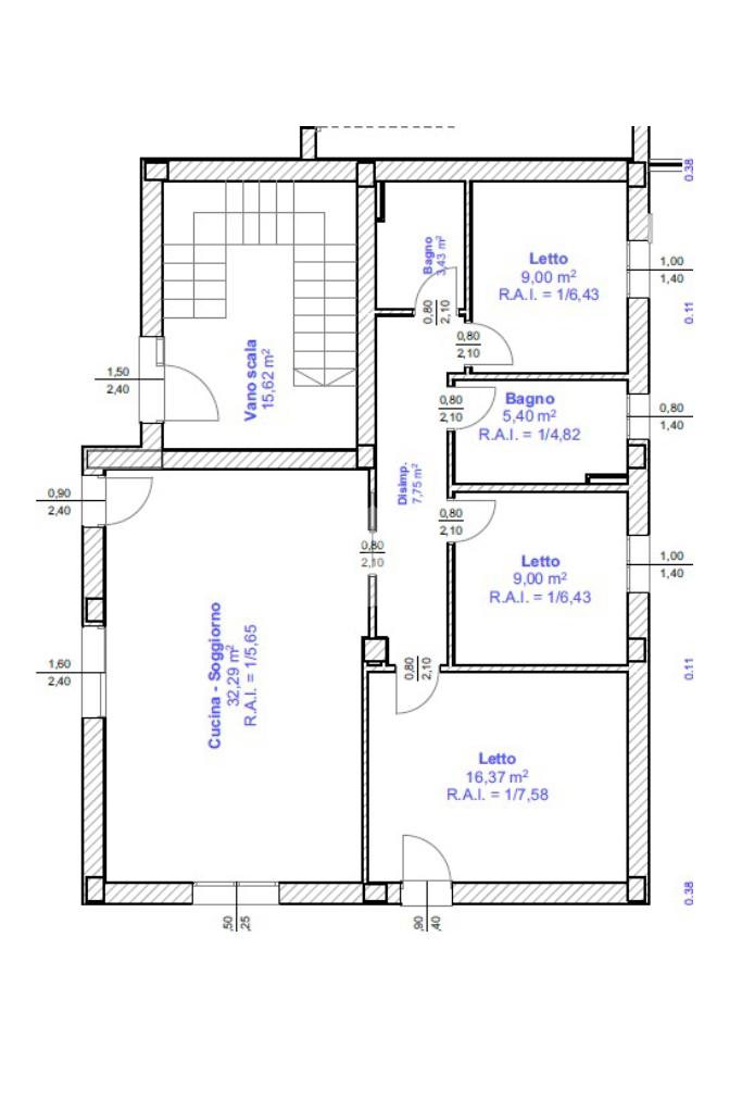
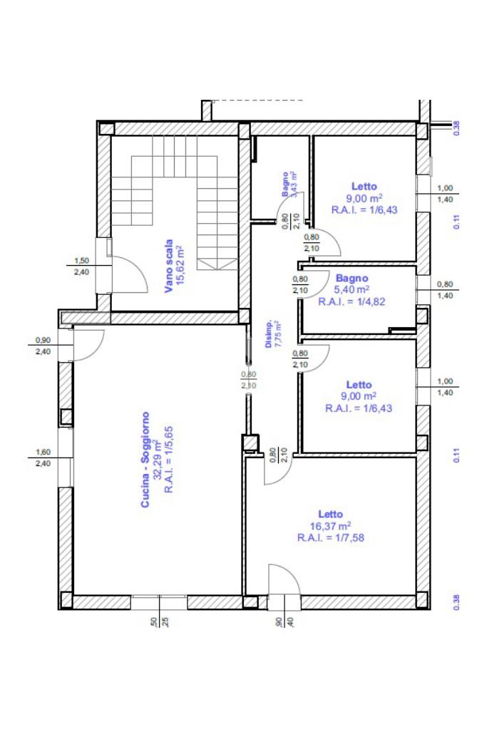
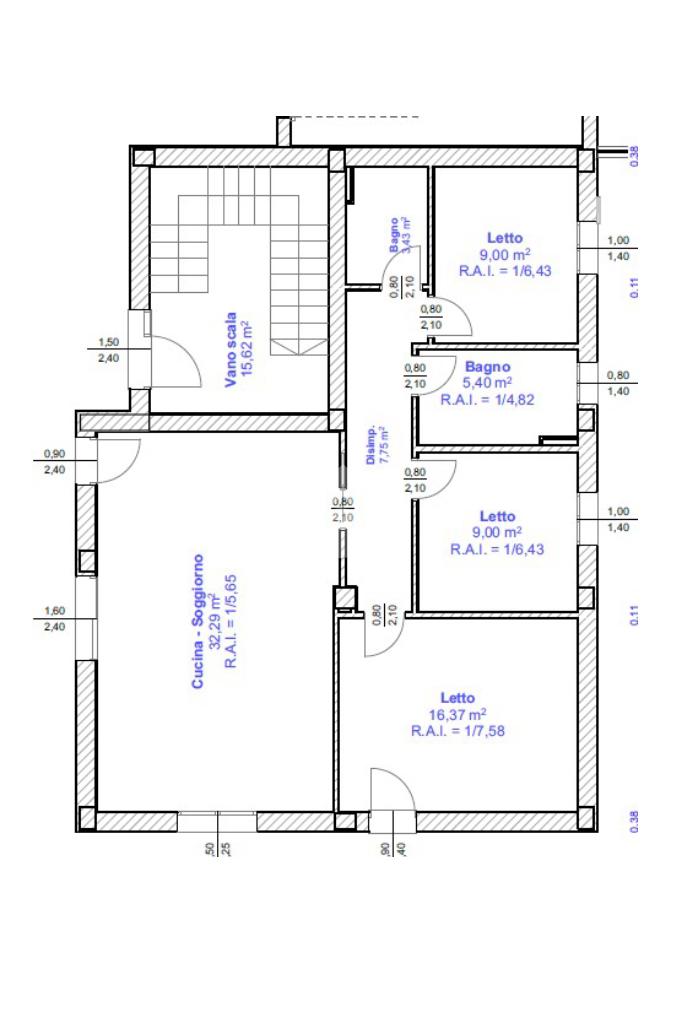
Al suo interno l’abitazione è così suddivisa: il piano terra, adibito a zona giorno, è composto dal soggiorno con angolo cottura di circa 45 mq e un primo servizio con doccia. La zona notte, posta al piano primo, presenta tre camere da letto (di cui una con accesso al balcone) ed un ulteriore servizio con doccia.
Completano la soluzione l’autorimessa comunicante con l’interno della casa e il giardino circostante.

SE È INTERESSATO/A ALLE NOSTRE PROPOSTE E HA UNA CASA DA VENDERE, VENGA A TROVARCI PERCHÉ ABBIAMO LA SOLUZIONE IDEALE PER ACQUISTARE E VENDERE CONTESTUALMENTE IN UN’UNICA OPERAZIONE, CON ESTREMA SERENITÀ E NEL MINOR TEMPO POSSIBILE.
INOLTRE, PER CHI VENDE CON NOI, GARANTIAMO I SEGUENTI SERVIZI:
-VALUTAZIONE GRATUITA
-ANALISI DI PROVENIENZA
-VISURE IPOTECARIE E CATASTALI
-MOLTEPLICI E MIGLIORI SERVIZI DI PROMOZIONE PUBBLICITARIA TRADIZIONALI E SULLE PRINCIPALI PIATTAFORME IN RETE: IDEALISTA, .

Mostra tutto

Nelle vicinanze

Trasporto pubblico Trasporto pubblico
Suzzara
Suzzara
1,8 Km
Boiane bivio - Via Villa Inferiore
Boiane bivio - Via Villa Inferiore
2,7 Km
Codisotto
Codisotto
2,7 Km
Ricariche auto elettriche Ricariche auto elettriche
evway Comune di Suzzara
1,5 Km
U2 Supermercato Suzzara | EnelX
2,0 Km
Scuole Scuole
Scuole
210 m
Farmacia Farmacia
Parafarmacia Conad
810 m
Ospedali Ospedali
Ospedale di Suzzara
2,1 Km
Supermercati Supermercati
Ipercoop
40 m
Conad
820 m
U2
2,0 Km
Ristoranti Ristoranti
Ristorante Pizzeria da Cuomo
140 m
Ristoranti
3,0 Km
Mostra tutto

Caratteristiche

Rif.:
60990217
Piano:
Su più livelli di 2
Totale piani:
2
Box:
1
Balconi:
1
Camere da letto:
3
Mostra tutto
Prezzo Prezzo
€ 320.000
Rata mutuo Rata mutuo
€ 1.520 / mese
Spese annue Spese annue
€ 0
Proponi il tuo prezzoProponi il tuo prezzo

Classe Energetica

A4
A4
A4
A4
A4
A4
A4
A4
A4
EP globale non rinnovabile:
300.00 kW h/m² anno
EP globale rinnovabile:
51.21 kW h/m² anno
EP invernale del fabbricato:
EP estiva del fabbricato:
Anno di costruzione:
2024
Riscaldamento:
Autonomo
Tipo impianto:
A pavimento
Tipo alimentazione:
Metano

Ti interessa visionare l'immobile?

Fissa un appuntamento  Fissa un appuntamento

Richiedi informazioni

Clicca su Leggi per aprire l'informativa
* Questi campi sono obbligatori

Calcola il tuo mutuo

Semplice e senza impegno
Anticipo

( % )
Mutuo

( % )

pochi semplici passi

inserisci i tuoi dati
Questionario completato
Grazie per aver richiesto un appuntamento senza impegno con un nostro Consulente del Credito e Assicurativo.

Hai inserito correttamente tutti i dati necessari e a breve riceverai una e-mail con un link da convalidare per inviare i tuoi dati.
Affiliato
Tecnosuzzara Srl
Viale Europa, 16 46029 Suzzara (MN)

Il nostro staff


  • Fabio Amati
    Responsabile

  • Giovanni Boccia
    Affiliato

  • Andrea Curcio
    Responsabile

  • Carmine Greco
    Collaboratore

  • Chiara Pia Parente
    Collaboratrice

  • Martina Roversi
    Coordinatrice
Viale Europa, 16 46029 Suzzara (MN)
Zona: Suzzara
Mostra su mappa
Orari: dal lunedì al venerdì: 09.00 - 13.00 e 15.00 - 19.30; sabato 09.00 - 13.00 e al pomeriggio su appuntamento
Affiliato
Tecnosuzzara Srl
Viale Europa, 16 46029 Suzzara (MN)

2026 Tecnocasa Franchising S.p.A. - P. IVA 08365160152 - Via Monte Bianco 60/A 20089 Rozzano (MI). Ogni agenzia ha un proprio titolare ed è autonoma. Privacy policy | Policy utilizzo | Cookie policy