Porzione di trifamiliare in vendita

Suzzara, Via Machado Antonio - Brusatasso
€ 210.000
5 locali 5 locali
169 Mq 169 Mq
2 bagni 2 bagni

Porzione di trifamiliare in vendita

Suzzara, Via Machado Antonio - Brusatasso

Descrizione annuncio

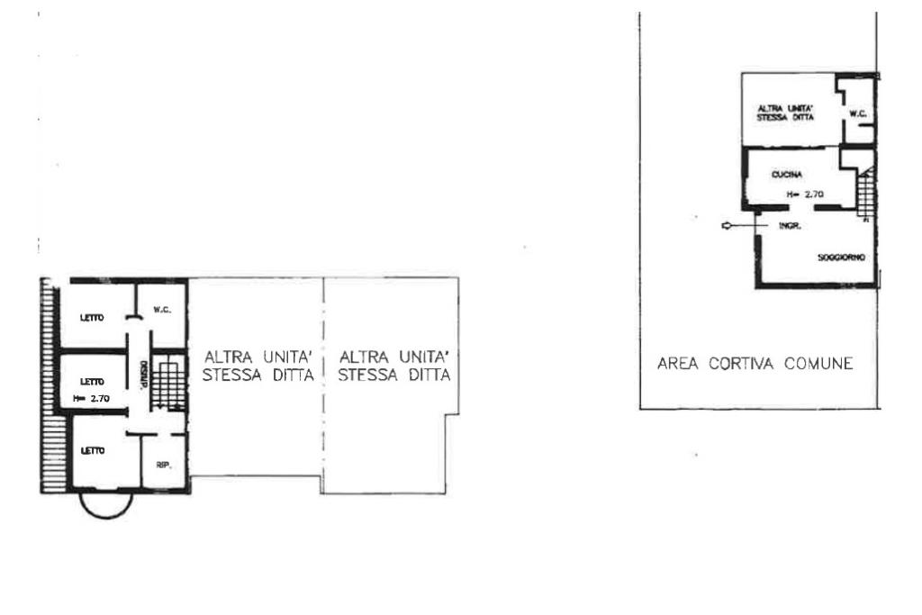
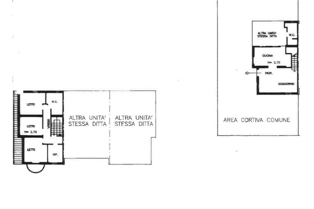
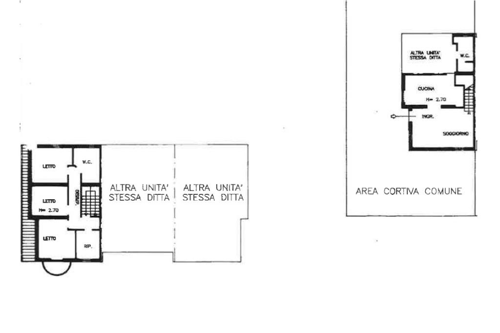
BRUSATASSO (frazione del comune di Suzzara): Proponiamo in vendita porzione di trifamiliare, sviluppata su due livelli e valorizzata dal giardino di proprietà. Al piano terra, l'ingresso accoglie in un ampio soggiorno con una cucina separata abitabile e un primo servizio con doccia. Completa il piano il box comunicante, che offre praticità e sicurezza. Salendo al primo piano, si trovano tre camere da letto, ideali per una famiglia, e un secondo bagno.

SE È INTERESSATO/A ALLE NOSTRE PROPOSTE E HA UNA CASA DA VENDERE, VENGA A TROVARCI PERCHÉ ABBIAMO LA SOLUZIONE IDEALE PER ACQUISTARE E VENDERE CONTESTUALMENTE IN UN’UNICA OPERAZIONE, CON ESTREMA SERENITÀ E NEL MINOR TEMPO POSSIBILE.
INOLTRE, PER CHI VENDE CON NOI, GARANTIAMO I SEGUENTI SERVIZI:
-VALUTAZIONE GRATUITA
-ANALISI DI PROVENIENZA
-VISURE IPOTECARIE E CATASTALI
-MOLTEPLICI E MIGLIORI SERVIZI DI PROMOZIONE PUBBLICITARIA TRADIZIONALI E SULLE PRINCIPALI PIATTAFORME IN RETE.

Mostra tutto

Nelle vicinanze

Trasporto pubblico Trasporto pubblico
Suzzara
Suzzara
2,4 Km
Boiane bivio - Via Villa Inferiore
Boiane bivio - Via Villa Inferiore
2,4 Km
Palidano
Palidano
1,4 Km
Ricariche auto elettriche Ricariche auto elettriche
U2 Supermercato Suzzara | EnelX
2,6 Km
evway Comune di Suzzara
3,0 Km
Ospedali Ospedali
Ospedale di Suzzara
2,2 Km
Supermercati Supermercati
U2
2,6 Km
Mostra tutto

Caratteristiche

Rif.:
61130401
Piano:
Su più livelli di 2
Totale piani:
2
Box:
1
Balconi:
1
Camere da letto:
3
Mostra tutto
Prezzo Prezzo
€ 210.000
Rata mutuo Rata mutuo
€ 979 / mese
Spese annue Spese annue
€ 0
Proponi il tuo prezzoProponi il tuo prezzo

Classe Energetica

G
G
G
G
G
G
G
G
G
EP globale non rinnovabile:
300.00 kW h/m² anno
EP globale rinnovabile:
3.00 kW h/m² anno
EP invernale del fabbricato:
EP estiva del fabbricato:
Anno di costruzione:
1995
Riscaldamento:
Autonomo
Tipo impianto:
A radiatori
Tipo alimentazione:
Metano

Ti interessa visionare l'immobile?

Fissa un appuntamento  Fissa un appuntamento

Richiedi informazioni

Clicca su Leggi per aprire l'informativa
* Questi campi sono obbligatori

Calcola il tuo mutuo

Semplice e senza impegno
Anticipo

( % )
Mutuo

( % )

pochi semplici passi

inserisci i tuoi dati
Questionario completato
Grazie per aver richiesto un appuntamento senza impegno con un nostro Consulente del Credito e Assicurativo.

Hai inserito correttamente tutti i dati necessari e a breve riceverai una e-mail con un link da convalidare per inviare i tuoi dati.
Affiliato
Tecnosuzzara Srl
Viale Europa, 16 46029 Suzzara (MN)

Il nostro staff


  • Fabio Amati
    Responsabile

  • Giovanni Boccia
    Affiliato

  • Andrea Curcio
    Collaboratore

  • Mohamed Filal
    Collaboratore

  • Valentina Greco
    Coordinatrice

  • Chiara Pia Parente
    Collaboratrice
Viale Europa, 16 46029 Suzzara (MN)
Zona: Suzzara
Mostra su mappa
Orari: dal lunedì al venerdì: 09.00 - 13.00 e 15.00 - 19.30; sabato 09.00 - 13.00 e al pomeriggio su appuntamento
Affiliato
Tecnosuzzara Srl
Viale Europa, 16 46029 Suzzara (MN)

2025 Tecnocasa Franchising S.p.A. - P. IVA 08365160152 - Via Monte Bianco 60/A 20089 Rozzano (MI). Ogni agenzia ha un proprio titolare ed è autonoma. Privacy policy | Policy utilizzo | Cookie policy